33474蒙特卡罗

中文 EN
返回
在线原粮变频雷达水分测量仪RF2500
在线原粮变频雷达水分测量仪RF2500
在线原粮变频雷达水分测量仪RF2500
在线原粮变频雷达水分测量仪RF2500
在线原粮变频雷达水分测量仪RF2500
在线原粮变频雷达水分测量仪RF2500
在线原粮变频雷达水分测量仪RF2500
在线原粮变频雷达水分测量仪RF2500
所属分类:水分测量产品
产品详情

RF2500在线原粮变频雷达水分测量仪是33474蒙特卡罗公司自主研发的产品,适用于粮油原料行业的物料含水率在线测量。现有测量谷物水分的方法均为离线式,无法连续在线测量,而RF2500水分仪可以在产线上快速连续测量水分,实现在线动态实时检测,反应时间快,实现了对产品含水率的实时控制。

特点

连续测量、在线动态实时检测


优势

  • 连续、在线测量,直接参与自动控制

  • 发射能量低,不会改变物料的性质,安全可靠

  • 不受环境粉尘,水蒸气因素影响。抗干扰能力强

  • 不受物料颜色变化及阳光照射的影响

  • 测量的是总水(被测物料的表面和内部水分之和),测试结果更具代表性

  • 可实时传输4-20mA、RS485信号,连接PLC、DCS等中控系统,能更好的实时掌握测试数据


应用领域

RF2500在线原粮变频雷达水分测量仪能够测量粮油原料行业的物料含水率,包括:大豆、花生、玉米、油菜籽等油性作物,以及高梁、大米、小麦等各种谷物粒料、种子等。


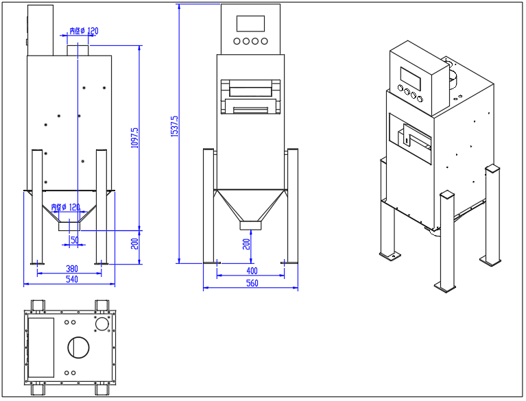
安装尺寸图

在线原粮变频雷达水分测量仪RF2500


主要技术参数

项目

参数

测量范围

0-50%

精准度

取决于应用,一般可达到0.2~0.3%;或量程的5%

重复性

±0.2%

物料流速

1800kg/小时~10000kg/小时

物料粒径

小于15mm

环境温度

0-50℃

环境湿度

≤90%

响应时间

1s

电源

AC220士15%

功率

MAX 30W

尺寸

560mm(长)x540mm(宽)x1300mm(高

材质物料接触部分为不锈钢

重量

40Kg




填写信息获取相关资料

img

关注公众号

img

关注视频号

期待您的致电

售后服务:0756-8150114

销售专线:400-7808-806

期待您的来信

HR邮箱:hr@daolvguo.com

邮箱:sales@daolvguo.com